Innenarchitektur Thöne
Borbergstrasse 27 · D-59065 Hamm
Fon +49 (0) 23 81 / 43 13 30
Fax +49 (0) 23 81 / 43 13 31
mail@innenarchitektur-thoene.de
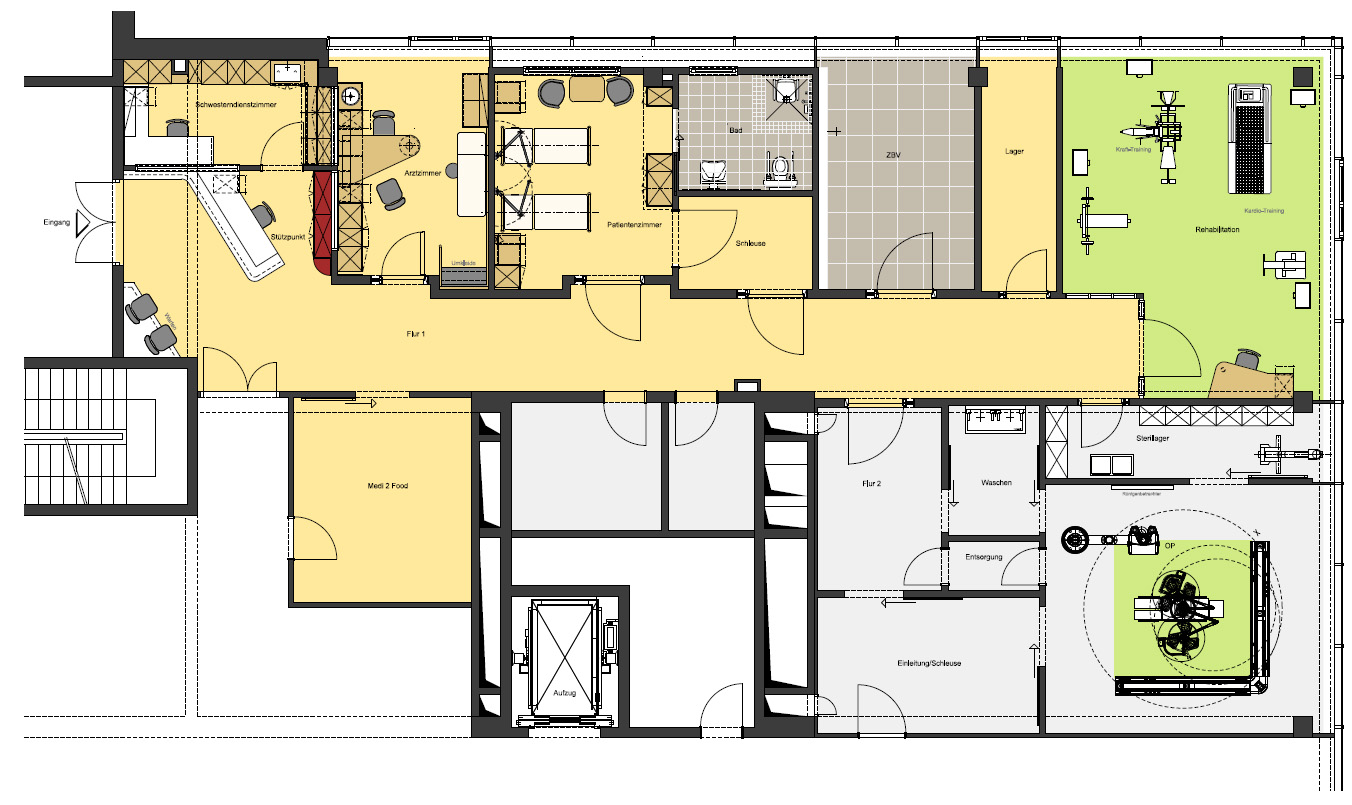
Fraunhofer Hospital-Engineering Labor
Das Hospital Engineering Labor wurde vom Fraunhofer Institut im InHaus 2, in Duisburg, mit finanzieller Unterstützung der EU und des Landes NRW, als Forschungs- und Kooperationsplattform einrichtet, um hier das „Krankenhaus der Zukunft“ zu entwickeln. Das Projekt dient als Testfläche, um Krankenhausinnovationen auf Praktikabilität und die Amortisation auszuprobieren, potentiellen Anwendern vorzustellen, und nach Überprüfung, ggfs. in der Praxis einzusetzen. Mittlerweile haben ca. 70 Unternehmen ihren Betrag zum Labor geleistet und die Ausstattung wird, im Dialog mit Anwendern und Herstellern, ständig weiter entwickelt. Auf einer Gesamtfläche von ca. 350 m2 wurden Teilbereiche eines Krankenhauses gebaut und eingerichtet, angefangen bei der Eingangssituation, mit Empfangstresen und Schwesterndienstzimmer, über die Arzt- und Untersuchungsräume, Patientenzimmer einschließlich Bad, bis zum vollständig ausgestatteten OP Bereich. Daneben entstand noch eine Rehaabteilung, sowie die zum Betrieb notwendige Infrastruktur, mit Fluren, Lager- und Technikräumen.
Unsere Leistung umfasste, im intensiven Dialog mit den Forschungspartnern aus der Industrie sowie dem Bauherrn, die gesamte Entwurfs- und Ausführungsplanung, einschließlich der Bauüberwachung, der Ausschreibung aller Gewerke, sowie die Planung der Inneneinrichtung und der Ausstattung, einschließlich der Beleuchtungsplanung und der Farb- und Materialgestaltung. Auf diversen Veranstaltungen im HE Labor beweisen die lebhaften Diskussionen, mit Anwendern und Planern, dass hier eine Plattform für weitere, fruchtbare Entwicklungen geschaffen wurde, zum Wohle der Patienten und des medizinischen Personals.






















